BEFA - Plateaux de bureaux à partir de 172m² et jusqu’à 868m² avec parkings - Var - 172 m2
ZA Les Playes Jean Monnet Nord – Allée de Paris – 83500 LA SEYNE SUR MER
DESCRIPTION DU BIEN
Dans la zone d’activités économiques des Playes à vocation industrielle, artisanale et tertiaire située à l’ouest de Toulon, le futur immeuble de bureaux dénommé «Tradewinds Centre » , est un bâtiment neuf indépendant en R+2 d’environ 2 450 m² de bureaux au total avec 88 emplacements de parkings, idéalement positionné, facile d’accès et à l’architecture novatrice.
Le terrain sur lequel sera édifié l’immeuble disposera d’espaces verts et d’une clôture, il est prévu l’accès aux véhicules par le biais d’un portail électrique.
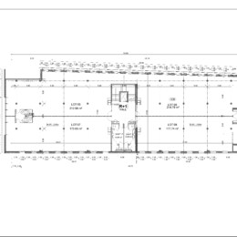
Le bâtiment comportera 3 niveaux de bureaux répondant aux normes PMR et ERP, et un sous-sol dédié au stationnement.
Il sera conçu avec la possibilité d’offrir des lots indépendants à partir de 172 m² de surface commerciale, avec les caractéristiques suivantes :
►Ascenseur PMR desservant chaque niveau du R-1 au R+2
►Interphone
►Open-space (cloisonnement à la charge du preneur, livraison uniquement avec doublage et revêtement en peinture lessivable + une arrivée d’eau froide avec évacuation sera prévue et en attente)
►Climatisation réversible gainable à commande manuelle
►Faux-plafond avec pavés d’éclairage, revêtement des sols en dalles moquette, plinthes techniques périphériques alimentées en courant fort et faible
►Sanitaires en parties communes sur chaque palier
12 lots seront disponibles, selon les surfaces commerciales associées :
RDC : 799m²
- Lot 01 : 213 m²
- Lot 02 : 216 m²
- Lot 03 : 172 m²
- Lot 04 : 197 m²
R+1 : 868m²
- Lot 05 : 237 m²
- Lot 06 : 239 m²
- Lot 07 : 193 m²
- Lot 08 : 198 m²
R+2 : 831m²
- Lot 09 : 222 m²
- Lot 10 : 214 m²
- Lot 11 : 199 m²
- Lot 12 : 196 m²
Conditions de location
Le prix ci-dessous concerne la location de surfaces de bureaux, incluant 1 place de parking pour 28m² de surface de bureau louée, y compris quote-part des parties communes et de l’emprise des escaliers, ainsi que la moitié des surfaces des terrasses affectées à certains lots (1 - 2 - 4 – 9 –10 -12).
-Type de bail : commercial 3/6/9 ans, destination à usage de bureaux
- Loyer : 175€ HT/HC/m²/an
- Fiscalité : soumis au régime de la TVA
- Révision du loyer : annuelle sur ILAT
- Périodicité de paiement : d’avance par trimestre
- Dépôt de garantie : 3 mois de loyer HT/HC ou caution bancaire
- Charges prévisionnelles dues par le preneur : environ 15€ HT/m²/an
- Taxe foncière estimative à la charge du preneur : environ 18€ HT/m²/an
- Honoraires à la charge du preneur : 15% HT+TVA de 20% du montant du loyer annuel HT/HC
TABLEAU DES SURFACES
| Lot | Niveau | Destination | Surface | Loyer ou prix | Disponibilité |
| 1 | RDC | Bureaux | 213 m2 | 175€ HT/HC/m²/an | 2è semestre 2022 |
| 2 | RDC | Bureaux | 216 m2 | 175€ HT/HC/m²/an | 2è semestre 2022 |
| 3 | RDC | Bureaux | 172 m2 | 175€ HT/HC/m²/an | 2è semestre 2022 |
| 4 | RDC | Bureaux | 197 m2 | 175€ HT/HC/m²/an | 2è semestre 2022 |
| 5 | 1er étage | Bureaux | 237 m2 | 175€ HT/HC/m²/an | 2è semestre 2022 |
| 6 | 1er étage | Bureaux | 239 m2 | 175€ HT/HC/m²/an | 2è semestre 2022 |
| 7 | 1er étage | Bureaux | 193 m2 | 175€ HT/HC/m²/an | 2è semestre 2022 |
| 8 | 1er étage | Bureaux | 198 m2 | 175€ HT/HC/m²/an | 2è semestre 2022 |
| 9 | 2è étage | Bureaux | 222 m2 | 175€ HT/HC/m²/an | 2è semestre 2022 |
| 10 | 2è étage | Bureaux | 214 m2 | 175€ HT/HC/m²/an | 2è semestre 2022 |
| 11 | 2è étage | Bureaux | 199 m2 | 175€ HT/HC/m²/an | 2è semestre 2022 |
| 12 | 2è étage | Bureaux | 196 m2 | 175€ HT/HC/m²/an | 2è semestre 2022 |
| Lot | 1 |
| Niveau | RDC |
| Destination | Bureaux |
| Surface | 213 m2 |
| Loyer ou prix | 175€ HT/HC/m²/an |
| Disponibilité | 2è semestre 2022 |
| Lot | 2 |
| Niveau | RDC |
| Destination | Bureaux |
| Surface | 216 m2 |
| Loyer ou prix | 175€ HT/HC/m²/an |
| Disponibilité | 2è semestre 2022 |
| Lot | 3 |
| Niveau | RDC |
| Destination | Bureaux |
| Surface | 172 m2 |
| Loyer ou prix | 175€ HT/HC/m²/an |
| Disponibilité | 2è semestre 2022 |
| Lot | 4 |
| Niveau | RDC |
| Destination | Bureaux |
| Surface | 197 m2 |
| Loyer ou prix | 175€ HT/HC/m²/an |
| Disponibilité | 2è semestre 2022 |
| Lot | 5 |
| Niveau | 1er étage |
| Destination | Bureaux |
| Surface | 237 m2 |
| Loyer ou prix | 175€ HT/HC/m²/an |
| Disponibilité | 2è semestre 2022 |
| Lot | 6 |
| Niveau | 1er étage |
| Destination | Bureaux |
| Surface | 239 m2 |
| Loyer ou prix | 175€ HT/HC/m²/an |
| Disponibilité | 2è semestre 2022 |
| Lot | 7 |
| Niveau | 1er étage |
| Destination | Bureaux |
| Surface | 193 m2 |
| Loyer ou prix | 175€ HT/HC/m²/an |
| Disponibilité | 2è semestre 2022 |
| Lot | 8 |
| Niveau | 1er étage |
| Destination | Bureaux |
| Surface | 198 m2 |
| Loyer ou prix | 175€ HT/HC/m²/an |
| Disponibilité | 2è semestre 2022 |
| Lot | 9 |
| Niveau | 2è étage |
| Destination | Bureaux |
| Surface | 222 m2 |
| Loyer ou prix | 175€ HT/HC/m²/an |
| Disponibilité | 2è semestre 2022 |
| Lot | 10 |
| Niveau | 2è étage |
| Destination | Bureaux |
| Surface | 214 m2 |
| Loyer ou prix | 175€ HT/HC/m²/an |
| Disponibilité | 2è semestre 2022 |
| Lot | 11 |
| Niveau | 2è étage |
| Destination | Bureaux |
| Surface | 199 m2 |
| Loyer ou prix | 175€ HT/HC/m²/an |
| Disponibilité | 2è semestre 2022 |
| Lot | 12 |
| Niveau | 2è étage |
| Destination | Bureaux |
| Surface | 196 m2 |
| Loyer ou prix | 175€ HT/HC/m²/an |
| Disponibilité | 2è semestre 2022 |
LOCALISATION ET ENVIRONNEMENT
ZA Les Playes Jean Monnet Nord – Allée de Paris – 83500 LA SEYNE SUR MER
proximité de l’échangeur autoroutier A50 situé
à 2mn (Marseille -Toulon – Hyères – Nice)service de réservation « Appel Bus » AB80 + transports en commun à proximité,avec liaisons urbaines et interurbaines (lignes 71-72-83-84)
liaisons ferroviaires proches, avec
gares TGV/TER(La Seyne/Six Fours à 3km - Ollioules à 5km -
Toulon à 8km)
CONDITIONS FINANCIÈRES
| LOYER | 175€ HT/HC/m²/an |
| Honoraires location | 15% HT +TVA 20% du loyer annuel HT/HC |
| Dépôt de garantie | 3 mois de loyer HT/HC |
| Type de bail | commercial 3/6/9 ans, destination à usage de bureaux |
| Paiement des loyers | d'avance par trimestre |
| Indexation des loyers | sur ILAT |
| Charges dues par le preneur | charges prévisionnelles estimées à environ 15€ HT/m²/an |
| Taxe foncière due par le preneur | estimation d'environ 18€ /m²/an |
| DPE |






